Secure & Spacious Home
Low maintenance, modern and secure double story home offering an effortless lifestyle with generous open plan living areas.
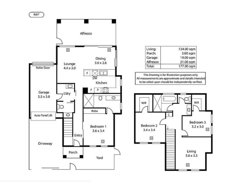
Features include:
– Spacious, open plan living/dining room
– Quality appointed kitchen with stainless steel appliances, generous pantry and cupboard space, recessed double sink and a wide breakfast bar
– Tiled alfresco portico, a vibrant area for your everyday casual outdoor entertaining
– A fully paved, low maintenance rear yard means easy care upkeep and plenty of space for the kids to play
– The main bedroom is located on the ground floor and features built-in robes and an ensuite bathroom
– Bedroom 2 and 3 upstairs, both with walk-in robes.
– A clever three-way main bathroom design will accommodate those busy school mornings
– 2nd living space, perfect for teens and kids.
– A clever upgrade to the single garage means you will have your own studio/work from home office, ideal for busy professionals and work from home executives
– Secure auto sliding gate to the street
– 3rd living area/retreat to the upper level
– Ground floor powder room and separate laundry
– Ducted reverse cycle air-conditioning
– Alarm system
– Intercom doorbell
Delightfully located within easy access to the City and the Adelaide parklands. Quality shopping can be found at Foodland Frewville, Arkaba Shopping Village or soak up the vibe of the Adelaide Central Market.
The zoned Primary School is Parkside Primary School (just a short walk away), and the zoned secondary school is the highly valued Glenunga International High School.
Local private schools include Sunshine Christian School, Concordia College, Walford Girls and Masada College, along with easy access to the colleges of Adelaide city.
Pets negotiable.






















