Executive Living in Adelaide CBD - 3 Bed 2 Bath 1 Secure Car Parking - Recently Renovated For you!
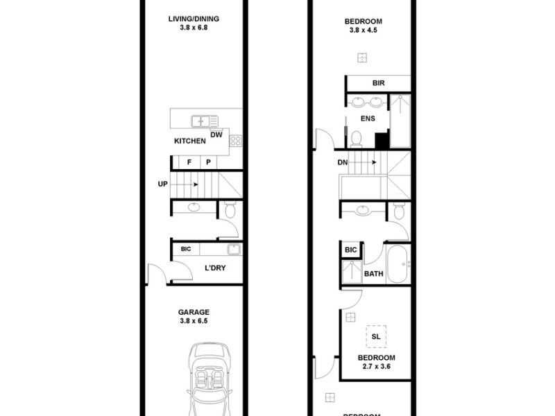
Adelaide Property Brokers are proud to present this stunning, spacious 3-bedroom, master bedroom with ensuite and built in robes, 2 bathrooms, with extra downstairs WC. This recently renovated 2-level city townhouse in the heart of the CBD. Its prime location is a gateway to Adelaide's bustling bars, exquisite restaurants and beautiful parklands.
It features include:
Reverse cycle air conditioning, heating and cooling
Secure Parking with enclosed Panel Door
Alarm
Intercom System
Private Courtyard
2 Secure Balconies – Both off Bedrooms
Gas Cooktop
Electric Oven
Large Walk-in Pantry
Large Stone Island Benchtop
Dishwasher
You will be in walking distance of Adelaide's Education District with Adelaide University, Uni SA, SAHMRI to name a few.
Additionally, the convenience of City West Childcare Centre within walking distance provides a reliable and accessible option for early childhood education and care.
Located within the sought-after school zones of Gilles Street and Goodwood Primary Schools, as well as Adelaide High School and Adelaide Botanic High School, this property offers access to top-quality education options for families.
With so many dining options at your fingertips, you'll undoubtedly find yourself spoiled for choice when it comes to dining out. The diverse offers of cuisines will make it difficult to choose just one favourite spot, whether you are seeking a quick caffeine fix or a leisurely dining experience, you will not be disappointed.
Build 2005
RLA 275183
Disclaimer – While the information provided can be helpful, it's essential for prospective buyers to conduct their own investigations to ensure accuracy and suitability for their needs. This might involve visiting the property, researching the neighbourhood, and seeking additional information from relevant authorities and exercising due diligence.
























