SOLD By Raquel Pacicca
What an opportunity!
3 Allotments Available Sold As One Including;
– 1 Westbury Street, Davoren Park SA 5113 – Lot 435 (11)
– 8 Hambridge Road, Davoren Park SA 5113 – Lot 435 (10)
– 10 Hambridge Road, Davoren Park SA 5113 – Lot 434
Adelaide Property Brokers are excited about this potential development site / investment located at Davoren Park. Located close to all amenities, local public transport and shopping centers,
This is a rare and unique opportunity, these properties are presented to you, for review and consideration
– 3 Torrens Title Large Allotments
– 3 street frontages
– 2 Corner Allotments
– 3 Potential Rental Income
– Long Term Tenants In Number 10
– Development Opportunity (STCC)
– Number 8 Hambridge and Number 1 Westbury – VACANT
Rental History – On Request
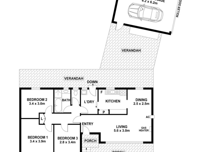
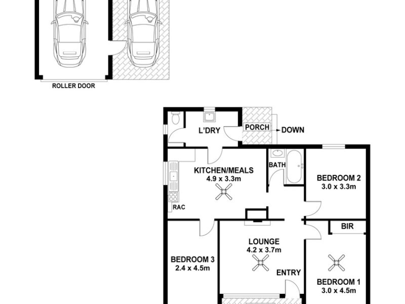
Please Refer To The Floorplan / Site Plan for Measurements As Per The CT’s
– 1 Westbury Street, Davoren Park SA 5113
Built: 1962
Build Size: 92m2 approx.
Land Size: 716m2 approx.
Previous Rental: $800.00 per month (Potential Rental: $260.00pw)
Council Rates: $1,317.15 per year approx.
SA Water Rates: $141.70 per quarter approx.
Revenue SA Rates: $67.40 per year approx.
– 8 Hambridge Road, Davoren Park SA 5113
Built: 1962
Build Size: 91m2 approx.
Land Size: 678m2 approx.
Currently unhabitable, needs bathroom renovations, kitchen requires updating. (Potential Rental: $260.00pw once complete approx.)
Council Rates: $1,373.70 per year approx.
SA Water Rates: $141.70 per quarter approx.
Revenue SA Rates: $80.50 per year approx.
– 10 Hambridge Road, Davoren Park SA 5113
Built: 1962
Build Size: 149m2 approx.
Land Size: 805m2 approx.
Rental Amount Currently: $255.00 per week. (Potential Rental: $270.00pw)
Council Rates: $1,418.45 per year approx.
SA Water Rates: $142.10 per quarter approx.
Revenue SA Rates: $80.35 per year approx.
A Total Of 2199m2 of Land
A Total Of 332m2 Of Builds Together
A Total Of Frontage 90.5m approx.











