Stunning Warehouse ONLY! Your new business hub in Brompton awaits!
Adelaide Property Brokers is thrilled to offer an outstanding leasing opportunity in the vibrant district of Brompton.
Ideally located just moments’ away from the popular Plant 4 Bowden complex, North Adelaide and Adelaide’s CBD, this property offers exceptional convenience. Nestled within the City of Charles Sturt council area, it’s just moments from key amenities such as Welland Plaza Shopping Centre, Brompton Shopping Centre, the Entertainment Centre, a variety of eateries, pubs, business precincts and excellent public transport options such as Tram, Train and Bus.
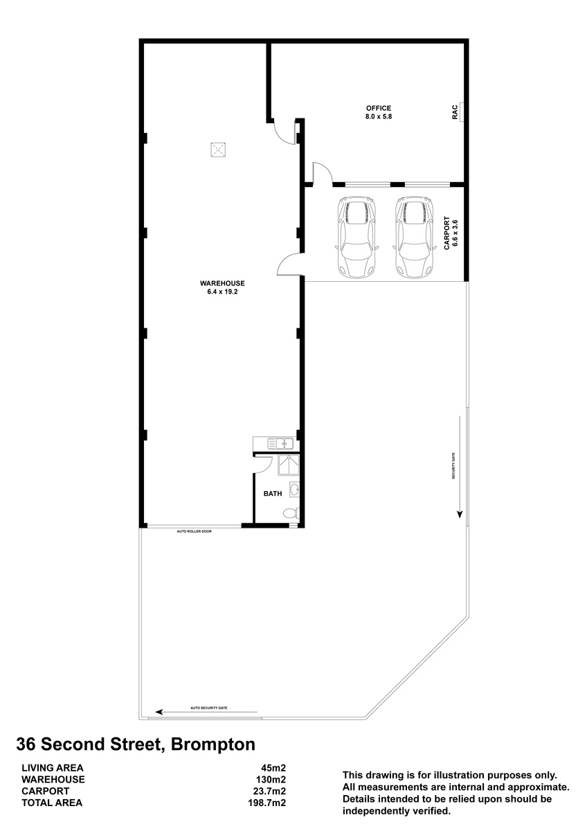
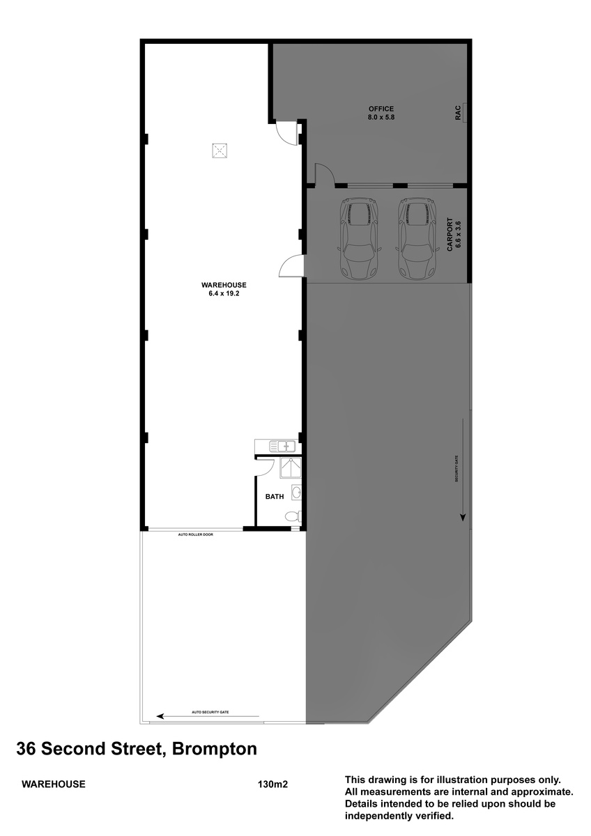
This secure, electric-gated property is positioned on a corner allotment and features the option of leasing the Warehouse only.
This versatile warehouse includes a modern kitchenette, bathroom with shower facilities, a 3-phase power available, evaporative air-conditioning through the warehouse, and the warehouse can accommodate up to 8 vehicles with both electric roller door and gate for ease of access. The property also accommodates both off-street and on-street parking.
This property is ideal for a wide range of businesses, vehicle/goods storage, bulk goods, retail, gym, or storage offering flexibility to suit diverse commercial needs.
Property Features
Warehouse Area:
– Warehouse: 130m2
– Warehouse Roller door clearance: Height 2.9m Width 3.8m
– Warehouse 80 Watts 3-phase to the board
– Evaporative Air-conditioner
– Bathroom 1 x Toilet & Shower
– Kitchenette
– Remote Gated Security (north facing gate)
– 8 Car provision
Contact us today to seize this opportunity. Reach out to Raquel Pacicca at 0418 836 689 or 08 8243 2555.
RLA 205498
Disclaimer – While the information provided can be helpful, it’s essential for prospective Lessee conduct their own investigations to ensure accuracy and suitability for their needs. This might involve visiting the property, researching the neighborhood, and seeking additional information from relevant authorities and exercising due diligence.



























